Smalle Vliet 38

4254CP SLEEUWIJK

Beschikbaar Open huis: 28 maart van 11:00 tot 15:00 uur

€ 325.000,- k.k.

Soort woning Woonhuis

Bouwjaar 1960

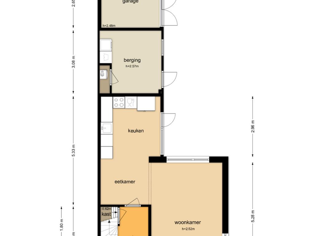
Oppervlakte wonen 73 m²

Aantal slaapkamers 3

Kenmerken

Overdracht

Vraagprijs
€ 325.000 k.k.
Vraagprijs per m²
€ 4.452
Aangeboden sinds
23 maart 2026
Status
Beschikbaar
Aanvaarding
In overleg

Bouw

Soort woning
Woonhuis
Bouwjaar
1960
Soort dak
Zadeldak

Oppervlakten en inhoud

Oppervlakte wonen
73 m²
Oppervlakte overige inpandige ruimte
12 m²
Oppervlakte externe bergruimte
8 m²
Perceel
201 m²
Inhoud
324 m³

Indeling

Aantal kamers
4
Aantal slaapkamers
3
Aantal badkamers
1
Badkamervoorzieningen
Toilet, wastafelmeubel en inloopdouche
Aantal woonlagen
3 woonlagen
Voorzieningen
Rolluiken en buitenzonwering

Energie

Energielabel
D
Isolatie
Muurisolatie en gedeeltelijk dubbel glas
Verwarming
Cv-ketel en vloerverwarming gedeeltelijk
Warm water
Cv-ketel
Cv-ketel
Remeha HR (combiketel uit 2011)

Buitenruimte

Ligging
In woonwijk
Tuin
Achtertuin en voortuin
Achtertuin
63 m² gelegen op het zuiden

Bergruimte

Schuur/berging
Aangebouwd steen
Voorzieningen
Voorzien van verwarming, voorzien van elektra en voorzien van water

Garage

Soort garage
Geen garage

Omschrijving

Smalle Vliet 38 – Sleeuwijk
Een heerlijk (t)huis op een plek waar je zó wilt wonen!

Welkom bij deze verrassend ruime en keurig onderhouden twee-onder-een-kapwoning, gelegen op een fijne en centrale locatie in Sleeuwijk. Een huis waar je je direct thuis voelt, met volop leefruimte, praktische extra’s én een zonnige tuin waar je straks uren gaat genieten.

Bij aankomst valt meteen de verzorgde voortuin en ruime oprit voor twee auto’s op. Via de oprit loop je door naar de achtertuin op het zuiden – een heerlijke, zonnige plek waar je in alle rust kunt ontspannen. Dankzij de rolluiken en de charmante markies zit je hier ook op warme dagen comfortabel.

Binnen word je aangenaam verrast door de ruimte. De lichte woonkamer, met grote ramen aan zowel de voor- als achterzijde, zorgt voor een fijne, open sfeer. De laminaatvloer met vloerverwarming maakt het geheel extra comfortabel – thuiskomen was nog nooit zo fijn!

De keuken is geplaatst in de aanbouw en biedt een prettige verbinding met de tuin. Hier heb je alle mogelijkheden om jouw ideale keuken te realiseren en er echt jouw plek van te maken.

Op de eerste verdieping vind je drie fijne slaapkamers, perfect voor een gezin, thuiswerkplek of hobbyruimte. De slaapkamers aan de achterzijde zijn voorzien van rolluiken voor extra comfort. De badkamer is praktisch en compleet ingericht met een wastafelmeubel, toilet en een ruime inloopdouche.

En dan de extra’s… Via de overloop bereik je met een vlizotrap de verrassend ruime bergzolder over de volledige breedte van de woning. Daarnaast zijn er twee verwarmde bergingen aan de achterzijde – ideaal voor opslag, klussen of zelfs een hobbyruimte. Hier bevinden zich ook de aansluitingen voor wasmachine en droger én de CV-opstelling.

De achtertuin is absoluut een van de grote pluspunten: zonnig gelegen op het zuiden, netjes aangelegd met een terras en gazon, en heerlijk ruim. Of je nu wilt tuinieren, spelen of gewoon ontspannen – hier kan het allemaal.

Je woont hier in een levendig dorp met alle voorzieningen dichtbij. De (basis)school is op loopafstand en sportfaciliteiten (zwembad, tennis) ook. Het winkelcentrum “De Nieuwe Es” ligt op korte afstand en ook andere sport- en recreatiemogelijkheden zijn volop aanwezig. Zo is Maak een mooie wandeling langs de Merwede of pak de pont naar het gezellige Gorinchem voor een middagje uit.

Ook de bereikbaarheid is uitstekend: binnen enkele minuten zit je op de A27 of A15.

Kortom: een warm, comfortabel en verrassend ruim huis op een plek waar je je direct thuis voelt – met alle ingrediënten voor jarenlang woonplezier.
Zie jij jezelf hier al wonen? Wacht niet te lang en plan snel een bezichtiging – deze fijne woning wil je van binnen beleven!

Media

Locatie