Sigmondstraat 16

4251ZB WERKENDAM

Verkocht

Soort woning Woonhuis

Bouwjaar 1953

Oppervlakte wonen 77 m²

Aantal slaapkamers 3

Kenmerken

Overdracht

Aangeboden sinds
10 oktober 2025
Status
Verkocht
Aanvaarding
In overleg

Bouw

Soort woning
Woonhuis
Bouwjaar
1953
Soort dak
Zadeldak

Oppervlakten en inhoud

Oppervlakte wonen
77 m²
Oppervlakte overige inpandige ruimte
6 m²
Oppervlakte gebouwgebonden buitenruimte
26 m²
Perceel
115 m²
Inhoud
302 m³

Indeling

Aantal kamers
4
Aantal slaapkamers
3
Aantal badkamers
1
Badkamervoorzieningen
Ligbad, douche en wastafelmeubel
Aantal woonlagen
2 woonlagen
Voorzieningen
Mechanische ventilatie, rolluiken, buitenzonwering, airconditioning, rookkanaal en zonnepanelen

Energie

Energielabel
A+
Isolatie
Dakisolatie, muurisolatie en dubbel glas
Verwarming
Cv-ketel
Warm water
Cv-ketel
Cv-ketel
Tzerra Ace Remeha (combiketel uit 2023)

Buitenruimte

Ligging
In woonwijk en vrij uitzicht
Tuin
Achtertuin
Achtertuin
50 m² gelegen op het westen met achterom

Bergruimte

Schuur/berging
Aangebouwd steen

Garage

Soort garage
Geen garage

Omschrijving

Sigmondstraat 16 te Werkendam

Knusse tussenwoning met uitbouw, meerdere bergingen en een veranda.

Deze woning is gebouwd in 1953, heeft een inhoud van ca. 300 m³ en is gelegen op een perceel van 115 m².

Op het dak van de woning zijn 6 zonnepanelen aangebracht en de CV-installatie (Tzerra Ace Remeha HR) is uit 2023. Het energielabel van de woning is dan ook vastgesteld op A+. Daarnaast beschikt de woning over kunststof kozijnen en zijn er rolluiken aanwezig.

Indeling:
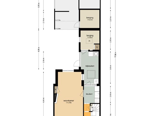
Begane grond:
U komt binnen in de hal; hier treft u het toilet en de trapopgang naar de verdieping. Via een toog komt u in de keuken terecht. De keuken heeft een recht aanrechtblok en is voorzien van inductie kookplaat, afzuigkap, spoelbak en oven. Vanuit de keuken komt u in de bijkeuken, waar de aansluitingen voor het witgoed zich bevinden. Ook is hier veel kastruimte aanwezig. Vanuit de bijkeuken heeft u toegang tot de tuin. Achter de bijkeuken is nog een berging. De doorzon woonkamer is heerlijk licht.

Verdieping:
Op de verdieping een overloop, drie slaapkamers en de badkamer. Op de overloop (boven het trappengat) hangt de CV-installatie. Verder is op de overloop airco aanwezig. De ouderslaapkamer heeft een aangrenzende badkamer voorzien van ligbad met douchemogelijkheid, wastafelmeubel, mechanische ventilatie en een infrarood handdoekradiator. De andere twee slaapkamers zijn voorzien van een inbouwkast.

Tuin:
De tuin ligt op het westen en is voorzien van bestrating. De houten erfafscheiding zorgt voor de nodige privacy. Achterin de tuin is een overkapping, welke toegang geeft tot de berging en de schuur.

Omgeving:
De woning is gelegen langs de Sigmondstraat en ligt op steenworp afstand van de supermarkt. Het dorpscentrum, dat bestaat uit een mix van landelijke ketens en ambachtelijke bedrijven, is op loopafstand te vinden.
In Werkendam zijn meerdere basisscholen en kinderdagverblijven. Verder is er een rijk verenigingsleven en zijn er diverse sportclubs. Werkendam grenst aan het natuurgebied "De Biesbosch" waar u heerlijk kunt recreëren. Er is ook een jachthaven die hiermee in verbinding staat.
Landelijk gezien ligt het huis ook goed, want binnen 5 minuten rijdt u op de A27 of A15. Vanaf "De Tol" is het openbaar vervoer ook goed geregeld.

Media

Locatie