Nieuweweg 2 2

4251AG WERKENDAM

Beschikbaar

€ 439.000,- k.k.

Soort woning Appartement

Bouwjaar 1932

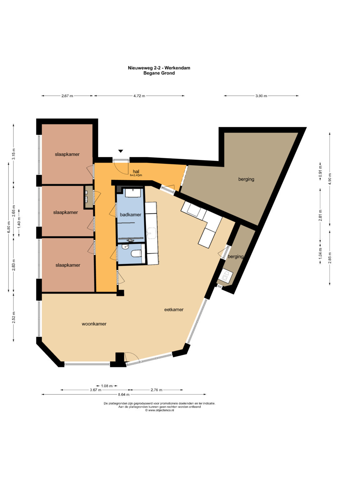
Oppervlakte wonen 115 m²

Aantal slaapkamers 3

Kenmerken

Overdracht

Vraagprijs
€ 439.000 k.k.
Vraagprijs per m²
€ 3.817
Aangeboden sinds
9 oktober 2025
Status
Beschikbaar
Aanvaarding
In overleg
Bijdrage VvE
€ 156,00 per maand

Bouw

Soort woning
Appartement
Soort appartement
Benedenwoning
Bouwjaar
1932
Soort dak
Zadeldak

Oppervlakten en inhoud

Oppervlakte wonen
115 m²
Inhoud
412 m³

Indeling

Aantal kamers
4
Aantal slaapkamers
3
Aantal badkamers
1
Badkamervoorzieningen
Douche en wastafelmeubel
Aantal woonlagen
1 woonlaag
Gelegen op
1e woonlaag
Voorzieningen
Tv-kabel

Energie

Isolatie
Dakisolatie, muurisolatie en gedeeltelijk dubbel glas
Verwarming
Cv-ketel en vloerverwarming gedeeltelijk
Warm water
Cv-ketel
Cv-ketel
Intergas Kompakt HRE (combiketel uit 2023)

Buitenruimte

Ligging
In centrum
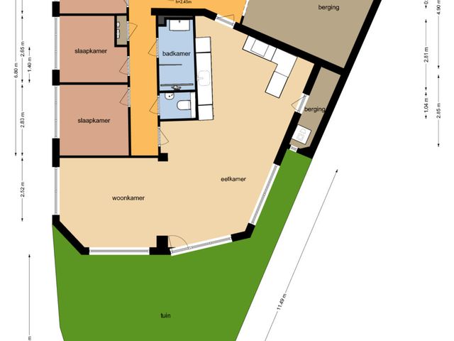
Tuin
Achtertuin
Achtertuin
48 m² gelegen op het zuiden met achterom

Bergruimte

Schuur/berging
Inpandig
Voorzieningen
Voorzien van elektra

Garage

Soort garage
Geen garage

Omschrijving

Welkom in dit ruime, sfeervolle appartement aan de Nieuweweg. Met maar liefst 115 m² woonoppervlakte, drie slaapkamers én een zonnige tuin op het zuiden is dit de plek waar comfort en gezelligheid samenkomen. En dat allemaal op een toplocatie, midden in het dorp!

De indeling
Je komt binnen in een royale hal die toegang geeft tot alle vertrekken. Aan de rechterkant vind je een handige berging voor de fietsen en extra spullen. Links loop je door de gang naar drie fijne slaapkamers, een nette badkamer met douche, wastafelmeubel en een handdoekradiator, een apart toilet en de woonkamer.

De woonkamer voelt ruim en toch knus dankzij de speelse hoek, ideaal voor een gezellige zit- én eethoek. De keuken heeft twee praktische keukenblokken en biedt toegang tot een extra berging met witgoedaansluiting. De keuken is voorzien van een combi-oven, spoelbak, vaatwasser, inductiekookplaat, en een recirculatie afzuigkap.

Buiten genieten in je eigen tuin
Een tuin op het zuiden? Check! Hier geniet je van zon van ’s ochtends vroeg tot ’s avonds laat. Genoeg ruimte voor een loungebank, een gezellige eettafel en misschien zelfs een barbecuehoek!

De locatie maakt het af
Alles wat je nodig hebt, ligt om de hoek. Supermarkten, scholen, winkels, terrasjes, eetgelegenheden – je loopt er zo naartoe. Openbaar vervoer is uitstekend geregeld en parkeren is gratis en openbaar.

Zie jij jezelf al genieten in dit heerlijke appartement? Bel ons vandaag nog voor een bezichtiging!

Media

Locatie