Heuveltje 1

4251AE WERKENDAM

Verkocht onder voorbehoud

€ 289.000,- k.k.

Soort woning Woonhuis

Bouwjaar 1900

Oppervlakte wonen 64 m²

Aantal slaapkamers 2

Kenmerken

Overdracht

Vraagprijs
€ 289.000 k.k.
Vraagprijs per m²
€ 4.516
Aangeboden sinds
1 september 2025
Status
Verkocht onder voorbehoud
Aanvaarding
In overleg

Bouw

Soort woning
Woonhuis
Bouwjaar
1900
Soort dak
Zadeldak

Oppervlakten en inhoud

Oppervlakte wonen
64 m²
Oppervlakte overige inpandige ruimte
13 m²
Perceel
226 m²
Inhoud
299 m³

Indeling

Aantal kamers
3
Aantal slaapkamers
2
Aantal badkamers
1
Badkamervoorzieningen
Toilet, douche, wastafelmeubel en whirlpool
Aantal woonlagen
2
Voorzieningen
Rolluiken, tv-kabel, airconditioning, dakraam en zonnepanelen

Energie

Energielabel
D
Isolatie
Dakisolatie, muurisolatie, vloerisolatie en dubbel glas
Verwarming
Cv-ketel
Warm water
Cv-ketel
Cv-ketel
Combiketel uit 2008

Buitenruimte

Ligging
Beschutte ligging
Tuin
Achtertuin
Achtertuin
88 m² gelegen op het westen

Bergruimte

Schuur/berging
Aangebouwd hout
Voorzieningen
Voorzien van verwarming, voorzien van elektra en voorzien van water

Garage

Soort garage
Geen garage

Omschrijving

Wonen met karakter in het hart van Werkendam? Dit is jouw kans!

Ben jij op zoek naar een sfeervolle woning in het hart van Werkendam? Dan nodigen we je van harte uit om een kijkje te nemen bij deze charmante hoekwoning; een rustige, beschutte plek waar comfort en karakter samenkomen.

Deze karakteristieke woning dateert uit 1900 en is in 1996 gerenoveerd. Het huis is met zorg onderhouden en biedt een woonoppervlakte van 64 m² op een royaal perceel van 226 m². Dankzij de verschillende isolatievoorzieningen – zoals dak-, muur- en vloerisolatie én dubbele beglazing – woon je hier aangenaam én energiezuinig. Extra’s zoals rolluiken, airco, een dakkapel en maar liefst 7 zonnepanelen maken het plaatje compleet.

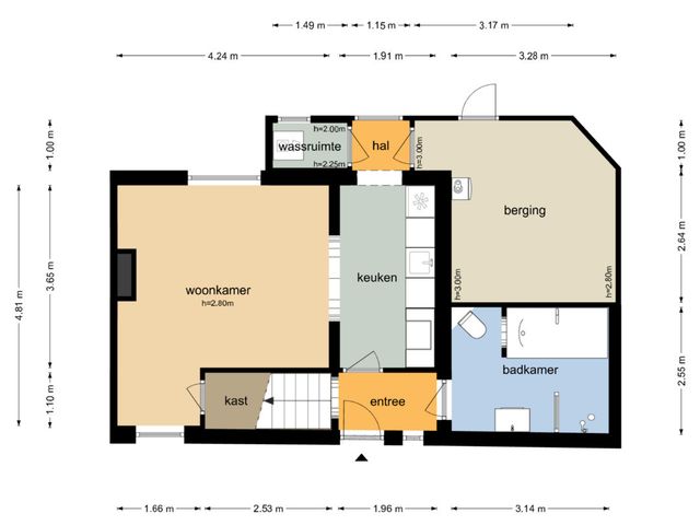
Begane grond
Je komt binnen via de hal, die toegang biedt tot de keuken en de badkamer. De keuken is praktisch ingericht met een recht aanrechtblok en moderne apparatuur zoals een Quooker, koelkast, vriezer, inductiekookplaat, afzuigkap en spoelbak. Vanuit de keuken loop je zo door naar de gezellige woonkamer, waar een sierschouw en een airco-unit voor sfeer en comfort zorgen. Het grote raam zorgt voor heerlijk veel daglicht.

Aansluitend vind je een tussenhal met wasruimte. De complete badkamer met toilet, douche, wastafelmeubel, handdoekradiator én een ligbad met jetstream bevindt zich ook op deze verdieping. Heerlijk ontspannen na een lange dag!

Eerste verdieping
Boven zijn twee sfeervolle slaapkamers, beide voorzien van een dakkapel. Eén van de kamers beschikt over een airco, en achter de knieschotten is volop bergruimte beschikbaar.

Tuin
De achtertuin ligt gunstig op het westen, zodat je tot in de avond van de zon kunt genieten. De tuin is onderhoudsvriendelijk aangelegd en biedt alle ruimte om gezellig buiten te zitten. Achterin de tuin is een kleine vijver.
De houten schuur heeft verwarming, elektriciteit én een wateraansluiting – ideaal als klusruimte of hobbyplek!

Parkeren
Parkeren doe je gewoon op eigen terrein – altijd plek voor de deur!

Locatie
Deze fijne woning ligt in een rustige wijk van Werkendam. Je woont hier op loopafstand van supermarkten en andere voorzieningen, en binnen no time sta je in het centrum. De combinatie van rust, sfeer en een centrale ligging maakt dit een ideale plek voor alleenstaanden, starters of stellen die op zoek zijn naar een knusse plek met karakter.

Kom je snel kijken?
Zie jij jezelf hier al wonen? Neem dan vandaag nog contact met ons op voor een bezichtiging. Misschien is dit fijne huis straks wel jouw nieuwe thuis!

Media

Locatie