Burgemeester van Rijswijkstraat 3

4285XT WOUDRICHEM

Beschikbaar

€ 325.000,- k.k.

Soort woning Woonhuis

Bouwjaar 1964

Oppervlakte wonen 84 m²

Aantal slaapkamers 4

Kenmerken

Overdracht

Vraagprijs
€ 325.000 k.k.
Vraagprijs per m²
€ 3.869
Aangeboden sinds
8 december 2025
Status
Beschikbaar
Aanvaarding
In overleg

Bouw

Soort woning
Woonhuis
Bouwjaar
1964
Soort dak
Zadeldak

Oppervlakten en inhoud

Oppervlakte wonen
84 m²
Oppervlakte overige inpandige ruimte
17 m²
Perceel
157 m²
Inhoud
359 m³

Indeling

Aantal kamers
5
Aantal slaapkamers
4
Aantal badkamers
1
Badkamervoorzieningen
Toilet, douche en wastafelmeubel
Aantal woonlagen
3
Voorzieningen
Buitenzonwering, rookkanaal en zonnepanelen

Energie

Energielabel
D
Isolatie
Dakisolatie en gedeeltelijk dubbel glas
Verwarming
Cv-ketel en houtkachel
Warm water
Cv-ketel
Cv-ketel
Remeha Avanta HR (combiketel uit 2007)

Buitenruimte

Ligging
In woonwijk
Tuin
Achtertuin en voortuin
Achtertuin
52 m² gelegen op het oosten met achterom

Bergruimte

Schuur/berging
Aangebouwd steen
Voorzieningen
Voorzien van elektra

Garage

Soort garage
Geen garage

Omschrijving

Burgemeester van Rijswijkstraat 3 – Woudrichem
Ruimte, licht en een heerlijke ligging: deze woning heeft het allemaal!

Aan een groen en kindvriendelijk plantsoen staat deze verrassend ruime eengezinswoning met fijne tuin, achterom én twee bergingen. Een perfecte plek voor wie comfortabel wil wonen in een rustige, gezellige buurt mét alle voorzieningen dichtbij.

De woning is goed onderhouden: in 2010 kreeg het dak een volledige vernieuwing én isolatie, er is grotendeels dubbel glas aanwezig en met 10 zonnepanelen bent u klaar voor de toekomst.

Het perceel is 157 m² groot en de woning heeft een inhoud van 327 m³.

Indeling

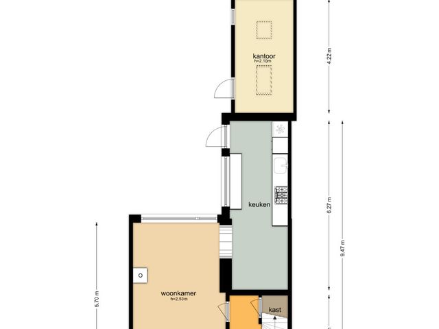
Begane grond
Je komt binnen in een lichte hal met trapopgang en modern toilet uit 2024. De woonkamer voelt direct warm en welkom dankzij de eikenhouten vloerdelen en de fraaie houtkachel. Vanuit de zithoek geniet je van een leuk en vrij uitzicht over het plantsoen.

De keuken in de aanbouw is een fijne plek voor kookliefhebbers, compleet met diverse inbouwapparatuur zoals een 5-pits gasstel, oven, magnetron en vaatwasser. Er is ruimte voor een eethoek, maar ook in de woonkamer kun je heerlijk tafelen.

Eerste verdieping
Hier bevinden zich drie slaapkamers, praktisch ingedeeld en voorzien van inbouwkasten. De recent vernieuwde badkamer (2024) is uitgerust met een wastafelmeubel, douche en handdoekradiator—alles wat je nodig hebt.

Tweede verdieping
De vaste trap brengt je naar een ruime vierde slaapkamer met dakkapel: een heerlijke, lichte ruimte die perfect is als master bedroom, werkkamer of speelkamer.

Tuin & Bergingen
Via de keuken stap je zo de tuin in. Direct achter de woning ligt een gezellig terrasje om heerlijk buiten te zitten, verder een gazon en groene erfafscheiding.

Er zijn twee bergingen, beide voorzien van elektra en via de tuin bereikbaar—ideaal voor fietsen, gereedschap of hobbyspullen. In de berging naast de keuken vindt je de witgoedaansluitingen en de CV-ketel (Remeha Avanta HR, 2007).

Omgeving
De locatie maakt deze woning écht bijzonder. Voor het huis ligt een brede groenstrook met speeltoestellen—ideaal voor gezinnen. Voorzieningen zoals supermarkten, winkels (o.a. Action, Trekpleister, Lidl) en een basisschool liggen binnen handbereik.

De historische vesting van Woudrichem nodigt uit tot heerlijk struinen langs musea, galeries, restaurantjes en terrasjes. Met de prachtige stadswallen, rivieroevers, de veerboot naar Gorinchem en Slot Loevestein is er altijd iets te beleven. En voor de watersportliefhebber: de jachthaven ligt op slechts 150 meter afstand!

Media

Locatie