Albert Ruylweg 5

4254EW SLEEUWIJK

Beschikbaar

€ 425.000,- k.k.

Soort woning Woonhuis

Bouwjaar 1985

Oppervlakte wonen 124 m²

Aantal slaapkamers 5

Kenmerken

Overdracht

Vraagprijs
€ 425.000 k.k.
Vraagprijs per m²
€ 3.427
Aangeboden sinds
9 maart 2026
Status
Beschikbaar
Aanvaarding
In overleg

Bouw

Soort woning
Woonhuis
Bouwjaar
1985
Soort dak
Zadeldak

Oppervlakten en inhoud

Oppervlakte wonen
124 m²
Oppervlakte overige inpandige ruimte
8 m²
Perceel
127 m²
Inhoud
458 m³

Indeling

Aantal kamers
6
Aantal slaapkamers
5
Aantal badkamers
1
Badkamervoorzieningen
Toilet, dubbele wastafel, wastafelmeubel, inloopdouche en wasmachineaansluiting
Aantal woonlagen
3 woonlagen
Voorzieningen
Mechanische ventilatie, rolluiken, airconditioning, dakraam en zonnepanelen

Energie

Energielabel
C
Isolatie
Dakisolatie, muurisolatie, vloerisolatie en dubbel glas
Verwarming
Cv-ketel
Warm water
Cv-ketel
Cv-ketel
Intergas HR ECO (combiketel uit 2015)

Buitenruimte

Ligging
In woonwijk
Tuin
Achtertuin en voortuin
Achtertuin
61 m² gelegen op het westen met achterom

Bergruimte

Schuur/berging
Aangebouwd steen
Voorzieningen
Voorzien van elektra

Garage

Soort garage
Geen garage

Omschrijving

Albert Ruylweg 5, Sleeuwijk – Ruime en goed onderhouden gezinswoning met maar liefst 5 slaapkamers!

In een rustige en kindvriendelijke woonomgeving staat deze verrassend ruime eengezinswoning met aangebouwde berging en zonnige tuin. De woning is keurig onderhouden en comfortabel uitgevoerd met dubbel glas, dak-, spouwmuur- en vloerisolatie. In 2022 zijn bovendien 12 zonnepanelen geplaatst, wat bijdraagt aan een lagere energierekening. Het energielabel is C.

Aan de overzijde van de straat zijn voldoende parkeerplaatsen aanwezig en in de directe omgeving bevindt zich een leuk speeltuintje – ideaal voor gezinnen met kinderen.

De woning is gebouwd in 1985, heeft een inhoud van circa 460 m³ en staat op een perceel van 127 m² eigen grond.

Indeling

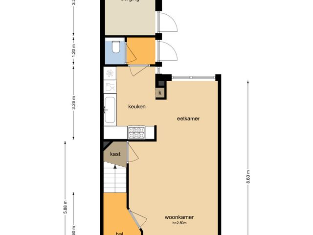
Begane grond
Via de overdekte entree kom je binnen in de hal met meterkast en trapopgang naar de eerste verdieping. De woonkamer is heerlijk licht dankzij de grote ramen aan zowel de voor- als achterzijde. De lichte wanden in combinatie met de warme vloer zorgen voor een gezellige en uitnodigende sfeer – een fijne plek om samen te komen met familie en vrienden.

Aan de tuinzijde bevindt zich de eethoek met aansluitend de open keuken. De keuken is uitgevoerd in een blauw/antraciet kleurstelling met een licht werkblad en beschikt over diverse inbouwapparatuur, waaronder een Boretti 6-pits gasfornuis met oven, een RVS afzuigkap, spoelbak, vaatwasser, koel-/vriescombinatie en magnetron. In de woonkamer is een inverter aanwezig die in de zomer voor verkoeling zorgt en in de koudere maanden juist voor extra warmte.

Aansluitend aan de keuken bevindt zich een portaal met toegang tot de tuin en de volledig betegelde toiletruimte met hangtoilet en designradiator.

Eerste verdieping
Op de eerste verdieping bevinden zich drie slaapkamers van circa 7, 10 en 14 m². De verdieping is afgewerkt met een nette laminaatvloer.

De moderne badkamer (geplaatst in 2025) is volledig betegeld en voorzien van een wastafelmeubel met dubbele wastafel, een inloopdouche, toilet, kastruimte en een handdoekradiator. Achter de badkamer ligt de praktische wasruimte met aansluitingen voor witgoed en extra bergruimte achter de knieschotten.

Tweede verdieping
Via een vaste trap bereik je de tweede verdieping. De voorzolder biedt veel bergruimte achter de knieschotten en hier bevindt zich de opstelplaats van de CV HR-combiketel (Intergas HR Eco, 2015). Ook op deze verdieping is een inverter aanwezig, zodat het hier altijd aangenaam blijft.

Daarnaast zijn er twee slaapkamers, waarvan één met een dakkapel. Deze dakkapel is in 2025 geplaatst en voorzien van een rolluik.

Tuin en berging
De achtertuin is verzorgd aangelegd met een betegeld terras en een houten schutting met achterom. Door de ligging op het westen kun je hier op zonnige dagen tot in de avond heerlijk van de zon genieten.
De aangebouwde berging heeft een oppervlakte van ruim 7 m² en biedt volop ruimte voor fietsen en extra opslag.

Omgeving
Sleeuwijk is een levendig dorp met veel voorzieningen. Op korte afstand ligt winkelcentrum “De Nieuwe Es”, waar je terecht kunt voor al je dagelijkse boodschappen. Ook sport- en recreatiemogelijkheden zijn volop aanwezig, zoals een zwembad, jeu-de-boulesbaan en tennisbaan op loopafstand. Daarnaast kun je heerlijk wandelen en fietsen in de natuur langs de Merwede. Vanuit de haven vaart een pont naar het gezellige centrum van Gorinchem.
Qua bereikbaarheid ligt Sleeuwijk zeer gunstig: binnen vijf minuten rijd je via de eigen op- en afrit bij De Tol de A27 of A15 op.

Nieuwsgierig geworden?
Plan snel een bezichtiging en ontdek zelf de ruimte, het comfort en de fijne ligging van deze woning aan de Albert Ruylweg 5 in Sleeuwijk. Wie weet wordt dit binnenkort jouw nieuwe thuis!

Media

Locatie