Abeelhof 68

4254BZ SLEEUWIJK

Verkocht onder voorbehoud

€ 469.000,- k.k.

Soort woning Woonhuis

Bouwjaar 1981

Oppervlakte wonen 123 m²

Aantal slaapkamers 4

Kenmerken

Overdracht

Vraagprijs
€ 469.000 k.k.
Vraagprijs per m²
€ 3.813
Aangeboden sinds
3 december 2025
Status
Verkocht onder voorbehoud
Aanvaarding
In overleg

Bouw

Soort woning
Woonhuis
Bouwjaar
1981
Soort dak
Zadeldak

Oppervlakten en inhoud

Oppervlakte wonen
123 m²
Oppervlakte gebouwgebonden buitenruimte
21 m²
Oppervlakte externe bergruimte
32 m²
Perceel
273 m²
Inhoud
442 m³

Indeling

Aantal kamers
5
Aantal slaapkamers
4
Aantal badkamers
1
Badkamervoorzieningen
Toilet, douche en wastafelmeubel
Aantal woonlagen
3
Voorzieningen
Rolluiken, buitenzonwering, rookkanaal, dakraam, glasvezel kabel en zonnepanelen

Energie

Energielabel
A+++
Isolatie
Dakisolatie, muurisolatie en dubbel glas
Verwarming
Warmtepomp

Buitenruimte

Ligging
In woonwijk
Tuin
Achtertuin en voortuin
Achtertuin
143 m² gelegen op het noorden met achterom

Bergruimte

Schuur/berging
Vrijstaand steen
Voorzieningen
Voorzien van elektra

Garage

Soort garage
Aangebouwd steen
Capaciteit
1
Voorzieningen
Elektra en vliering

Omschrijving

Abeelhof 68 – Sleeuwijk
Welkom bij dit gezinsvriendelijke hoekhuis uit 1981! Met een woonoppervlakte van 123 m² op een perceel van 273 m² biedt deze woning alle ruimte voor starters, gezinnen én doorstromers. Het huis is volledig gasloos en beschikt over een energielabel A+++ dankzij maar liefst 18 zonnepanelen, een warmtepomp, dubbele beglazing en dak-, muur- en vloerisolatie. Ook is huis voorzien van een rolluik, zonwering en glasvezel.

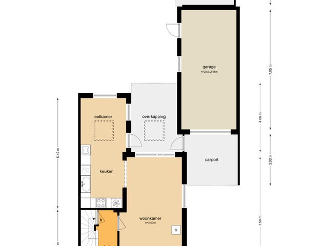
Begane grond
Je komt binnen in de hal met toilet en praktische bergkast. Vanuit de hal stap je de lichte woonkamer in. Dankzij de grote ramen aan zowel de voor- als achterzijde komt er veel daglicht binnen. Aansluitend vind je de ruime keuken, voorzien van een granieten aanrechtblad, vaatwasser, twee spoelbakken, inductiekookplaat, afzuigkap, koelkast, carrouselkast en combi-oven. Door de aanbouw is er plek voor een eettafel, en door de lichtkoepel en het grote raam is dit een heerlijke lichte ruimte vanwaar je direct de tuin in kijkt. In de keuken bevindt zich de achterdeur naar de overkapping.

Eerste en tweede verdieping
Op de eerste verdieping bevinden zich drie slaapkamers met grote ramen. De badkamer is voorzien van een douche, toilet, handdoekradiator en wastafelmeubel.
De tweede verdieping biedt een ruime overloop met een groot boilervat en aansluitingen voor wasmachine en droger. Hier vind je ook de vierde slaapkamer, voorzien van twee dakramen die voor licht in de ruimte zorgen.

Tuin
De achtertuin is via meerdere routes bereikbaar: de achterdeur, de deur onder de carport of de achterpoort. Links in de tuin ligt een grasveldje met een ingebouwde trampoline en speeltoestel. Rechts staat een knusse, houten overkapping waar je in de zomer lang van de avondzon kunt genieten. Verder biedt de diepe tuin meer fijne zit plekjes.
Achterin de tuin staat een stenen schuur met elektra, ideaal voor fietsen of tuingereedschap. Daarnaast geeft de tuin toegang tot de garage.

Parkeren
De woning beschikt over een lang oprit, een carport én een ruime garage – je auto kan dus zowel binnen als buiten staan. Voor visite zijn er ruime openbare parkeerplaatsen aan de overkant.

Ligging
Abeelhof 68 ligt in een rustige straat, zonder doorgaand verkeer. Gelegen in een kindvriendelijke woonwijk, met speeltuin op loopafstand. Winkels, scholen en openbaar vervoer vind je op korte afstand. De A27 ligt nabij, waardoor steden als Breda, Utrecht en Gorinchem snel bereikbaar zijn.

Is dit jouw nieuwe thuis?
Plan snel een bezichtiging en ervaar het zelf. We kijken ernaar uit je te ontmoeten!

Media

Locatie